facol

data
2018
Projeto
Ampliação de Unidade Industrial
localização
Pedome, Vila Nova de Famalicão
CONSTRUÇÃO
Telhabel Construções – S.A.
Engenharia
PN10 – Serviços de Engenharia
FOTOGRAFIA
João Morgado
A implantação do complexo industrial inicia-se com a reabilitação de uma estrutura fabril da década de 70, para adaptação ao exigente programa de tinturaria de fios.
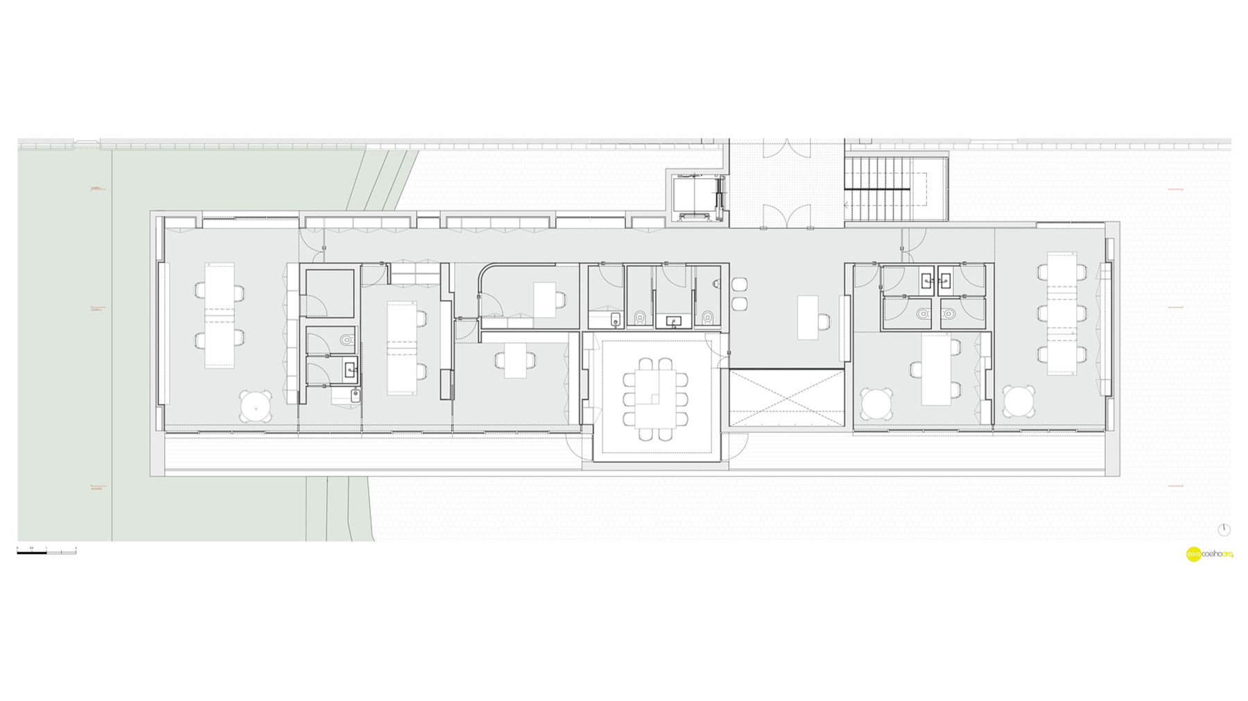
O edifício de escritórios surge como uma adição ao pavilhão inicial, ao qual se liga através de uma passagem generosa que concentra as circulações horizontais e verticais. Materializa-se num volume estendido de betão aparente, elevado sobre a zona de estacionamento que o serve.






















